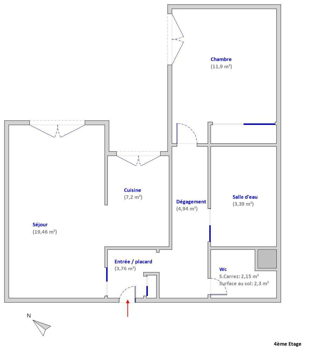
PARIS 12e BIZOT - BOIS DE VINCENNES À 5 minutes du métro L8 Michel BIZOT, du bois de Vincennes, du marché, des commerces et des écoles. Au 4ème étage avec ascenseur d'une belle résidence sécurisée, venez découvrir cet appartement de 2 pièces de 52,80m2 en très bon état. Côté jour une belle pièce de vie (séjour avec cuisine ouverte entièrement équipée de 26.66m2) exposée N/E. Côté nuit un couloir, une grande chambre (en dernier étage) avec des rangements de 11.90m2 exposée N/O, une salle d'eau et des WC séparées...
PARIS 12e BIZOT – BOIS DE VINCENNES À 5 minutes du métro L8 Michel BIZOT, du bois de Vincennes, du marché, des commerces et des écoles.
Au 4ème étage avec ascenseur d’une belle résidence sécurisée, venez découvrir cet appartement de 2 pièces de 52,80m2 en très bon état.
Côté jour une belle pièce de vie (séjour avec cuisine ouverte entièrement équipée de 26.66m2) exposée N/E. Côté nuit un couloir, une grande chambre (en dernier étage) avec des rangements de 11.90m2 exposée N/O, une salle d’eau et des WC séparées avec coin buanderie.
Lumineux et calme donnant sur un jardin, aucun travaux à prévoir.
Chauffage et eau chaude individuels.
Une cave complète ce bien. Possibilité de parking.
Copropriété avec local vélo.
Appelez-nous pour le visiter.
Les informations sur les risques auxquels ce bien est exposé sont disponibles sur le site Géorisques : www.georisques.gouv.fr